1916 E HAYDEN Lane -Tempe, AZ 85281
Due to the health concerns created by Coronavirus we are offering personal 1-1 online video walkthough tours where possible.




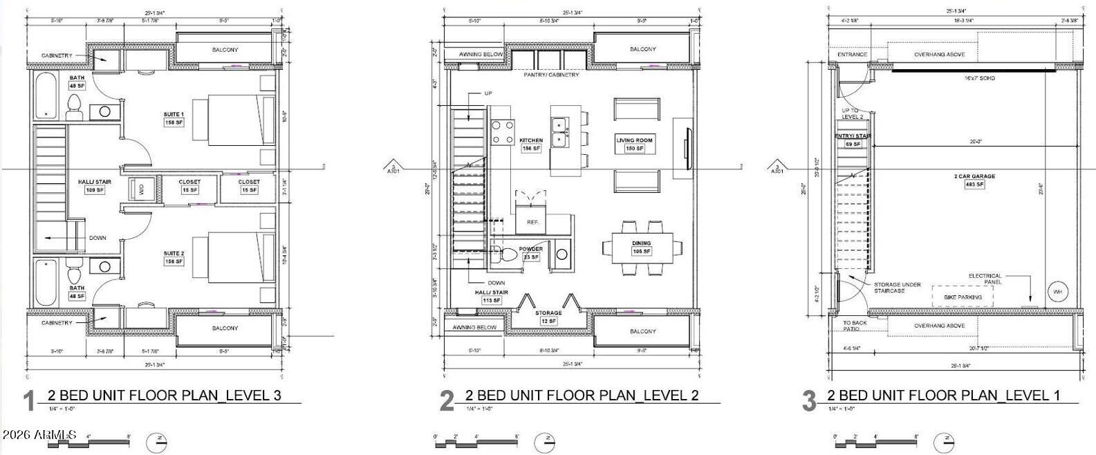
READY TO BUILD, PERMITS READY TO BE PULLED. City-approved construction docs ready to go for a 13-unit modern apartment development. Fantastic rental area in Tempe. Hayden Lane Townhomes is planned with (9) 2-bedroom, 2.5-bathroom and (4) 3-bedroom, 2.5-bathroom units. They all have 4 private balconies per unit and each unit includes a two-car garage. The planned redevelopment is a highly compatible infill development of a vacant parcel surrounded mainly by multi-family residential uses in the larger area between McClintock Drive and Smith Road, and University Drive to Apache Boulevard. . The north side of Hayden Lane here has transitioned to exclusively multi-family uses over the last 60 years. Hayden Townhomes is very similar to the existing multi-family in the area. Owner Agent.
| a week ago | Listing updated with changes from the MLS® | |
| a week ago | Listing first seen on site |
All information should be verified by the recipient and none is guaranteed as accurate by ARMLS. Copyright 2026 Arizona Regional Multiple Listing Service, Inc. All rights reserved.
Last checked: 2026-02-12 03:13 AM UTC

Did you know? You can invite friends and family to your search. They can join your search, rate and discuss listings with you.